Residential
The following project is a residential home. The home is located in Bend, Oregon and is the home off an elderly couple that requires in-home services. Therefore, the home is split up in two areas. One being the homeowner's area and the other being the live-in nurse's area. The project consists of construction documents detailing the lighting, power, and overall size of the spaces within the building.
Cover Sheet
Dimensioned Floor Plan
Furniture and Finish Plan
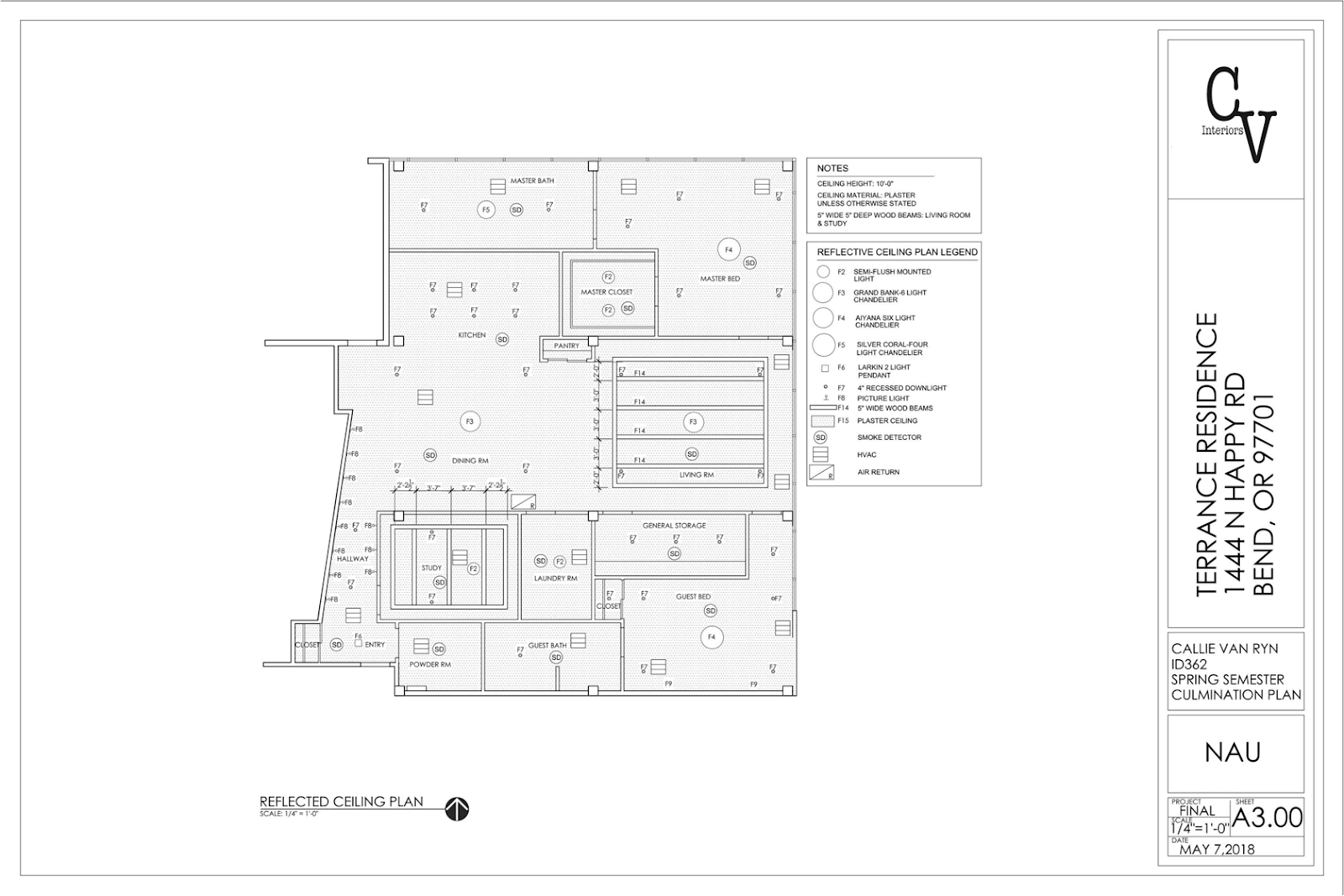
Reflected Ceiling Plan
Power and Lighting Plan
Lighting Fixture Schedule and Legend
***This project was completed using AutoCad and Excel.
This work is the property of Callie Van Ryn and may not be used without permission.
This work is the property of Callie Van Ryn and may not be used without permission.





